Representación Arquitectónica

Clases

Otoño 2022

Clase 01 - Introducción

Clase 02 - Comandos iniciales

Clase 03 - Comandos básicos parte 02

Clase 04 - Ejercicio de práctica

Clase 05 - Incio de casa

Clase 06 - Plano de casa (cont.)

Clase 07 - Ventanas

Clase 08 - Puertas

Clase 09 - Bloques

Clase 10 - Bloques completos

Clase 11 - Biblioteca de bloques

Clase 12 - Otros detalles

Clase 13 - Membrete

Clase 14 - Simbología y detalles

Detalles 15 - Detalles finales 2

Clase 16 y 17 - Elevaciones

Clase 20 y 21 - Cortes

Referencias

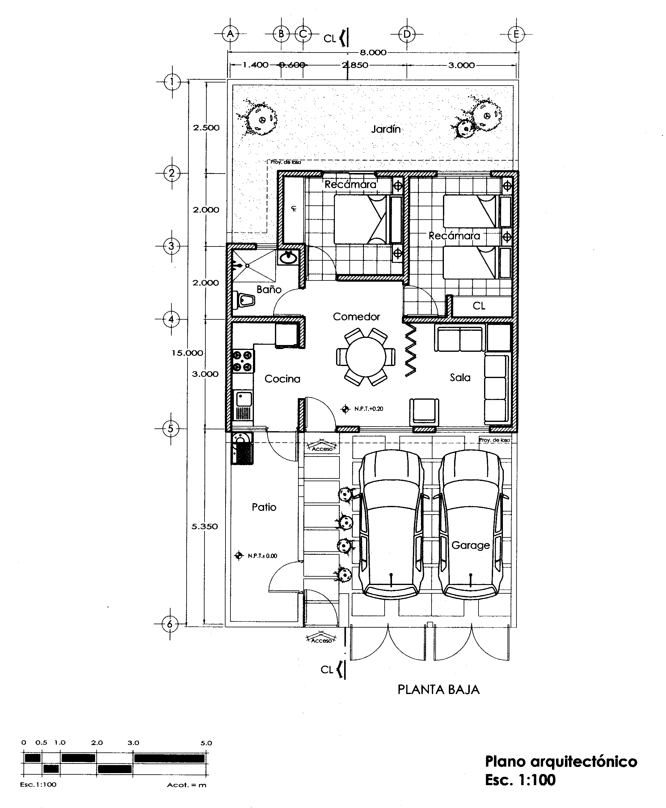
Plano de Clase

Configuración del membrete

Como configurar el layout

Configuración del membrete .pdf

Elevaciones

Video Elevación Lateral Izquierda

Video elevación posterior

Cortes

01 Introducción

02 Preparación

03 Parte 3 - Planta baja

04 Parte 4 - Corte Planta Alta

05 Parte 5 - Corte

muebles elevaciones.dwg

Documental ArchiCulture

Archiculture

Ejemplo 2022 - Compendio final

OT22 - EJEMPLO - NAHIL HDZ.pdf

OT22 - EJEMPLO - VILLAREAL GARZA.pdf

OT22 - EJEMPLO - GZZ CANTU.pdf

Examenes

Ejemplo Primer Parcial - Otoño 2022.pdf

Ejemplo Examen 2do Parcial OT2022

2P Avance inicio examen .dwg

2P EXAMEN OT22.pdf

2P examen OT22 plano.pdf

2P examen OT22 plano con medidas.pdf

Haz click en uno de los elementos y se visualizara aquí.

Loading...